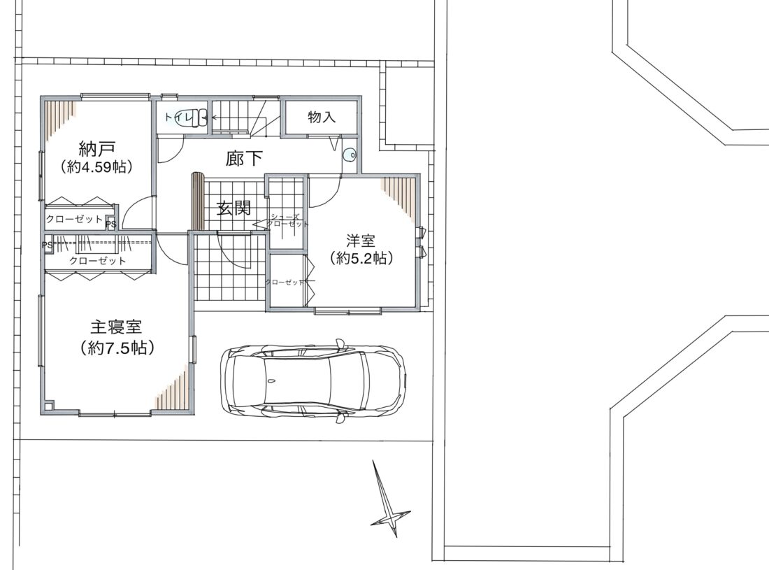
・中野島駅から平坦徒歩10分。3階建がたくさん建っている中、2階建です!
・随所に漆喰が塗られています。1階廊下に洗面台、リノベーション界隈で人気のRのドア枠など、築10年とは思えないデザインです。
・固定階段で上がれる8帖の小屋裏収納があります。
・大切にお住まいであったことが伝わってくる素敵な住まいです。ぜひ内覧にお越しください。
[ 2SLDK+小屋裏収納 / 4980万円 ]
JR南武線「中野島駅」徒歩10分

売買担当:山田 篤Yamada Atsushi
・中野島駅から平坦徒歩10分。3階建がたくさん建っている中、2階建です!
・随所に漆喰が塗られています。1階廊下に洗面台、リノベーション界隈で人気のRのドア枠など、築10年とは思えないデザインです。
・固定階段で上がれる8帖の小屋裏収納があります。
・大切にお住まいであったことが伝わってくる素敵な住まいです。ぜひ内覧にお越しください。
| 住所 | 川崎市多摩区生田一丁目 |
|---|---|
| 専有面積 | 建物面積93.56㎡ |
| そのほかの交通 | 京王相模原線「京王稲田堤」駅徒歩19分 |
| 建築年月 | 2016年11月 |
| 物件種別 | 中古戸建 |
| 用途地域 | 第一種中高層住居専用地域 |
| 現況 | 空家 |
| 特記事項 | 土地面積87.30㎡ |
| 引渡し | 即可 |
| 取引態様 | 専任媒介 |
| 構造 | 木造スレートぶき2階建 |
| 方位 | 南向き |
| 建蔽率/容積率 | 60%/180% |
| 面積計測方式 | 壁芯 |
| 敷地の権利形態 | 所有権 |
| 備考 | 駐車場1台 |
| 問い合わせ先 | 株式会社しあわせな家 |