・鶴ヶ峰駅から徒歩14分、渋谷まで乗り換えなし約40分の立地です。
・東南角地、陽当たり通風良好です。居住者以外が前面道路に進入してくることはほとんどないため、子どもが道路で遊んでいても安心です。
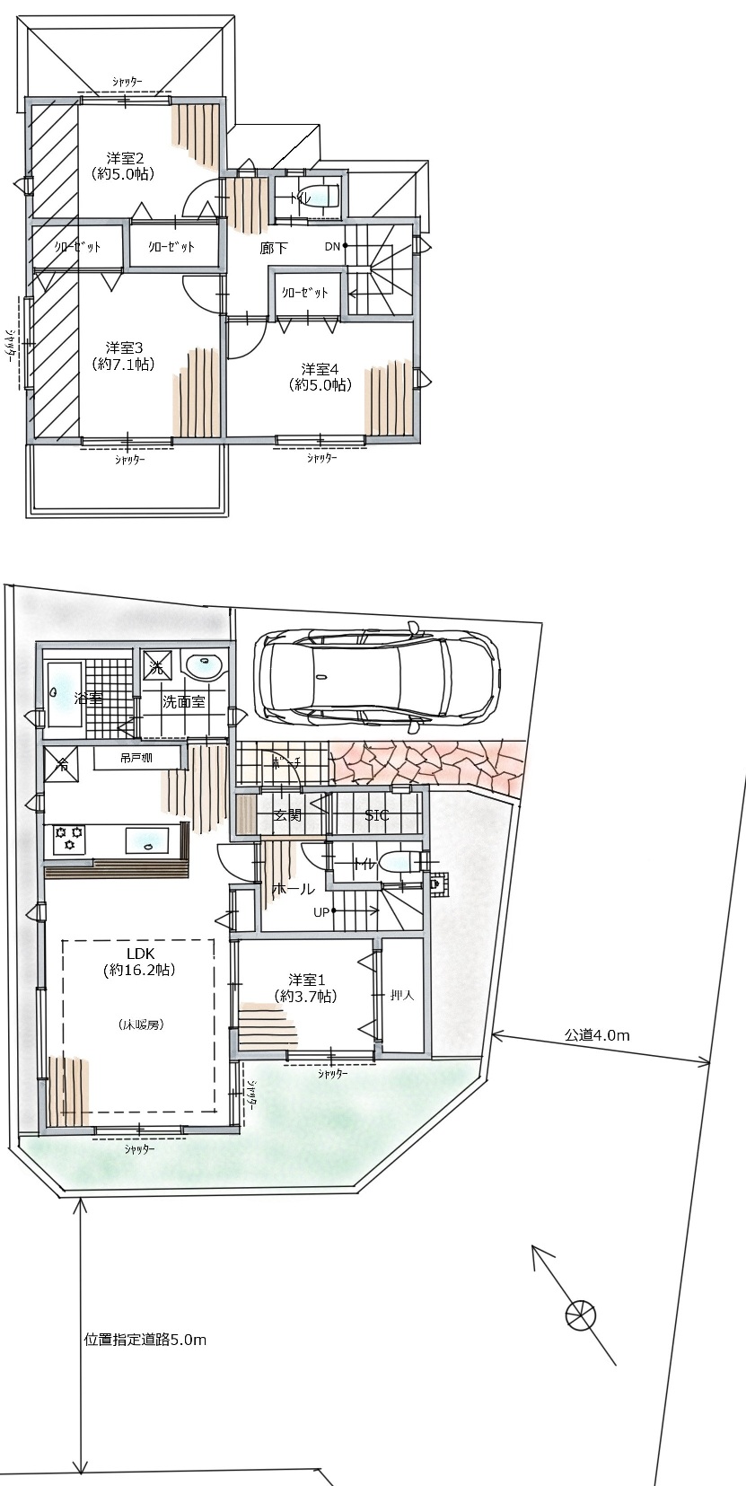
・ちょうど良い4LDK。欲しい設備も揃っていて、子育てするのに最適な住まいです。
・外構までしっかりと造り込まれています。室内コンディション良好、すぐにお住まいいただける状態です。

[ 4LDK ]
相鉄線「鶴ヶ峰」駅徒歩14分

売買担当:山田 篤Yamada Atsushi
・鶴ヶ峰駅から徒歩14分、渋谷まで乗り換えなし約40分の立地です。
・東南角地、陽当たり通風良好です。居住者以外が前面道路に進入してくることはほとんどないため、子どもが道路で遊んでいても安心です。
・ちょうど良い4LDK。欲しい設備も揃っていて、子育てするのに最適な住まいです。
・外構までしっかりと造り込まれています。室内コンディション良好、すぐにお住まいいただける状態です。
| 住所 | 横浜市旭区白根2丁目 |
|---|---|
| 建築年月 | 2016年11月 |
| 物件種別 | 中古戸建 |
| 用途地域 | 第一種低層住居専用地域 |
| 現況 | 所有者居住中 |
| 特記事項 | 土地面積100.51㎡ |
| 引渡し | 令和8年4月以降 |
| 取引態様 | 専任媒介 |
| 構造 | 木造スレート葺2階建 |
| 方位 | 南・東向き |
| 建蔽率/容積率 | 50%/100% |
| 面積計測方式 | 壁芯 |
| 敷地の権利形態 | 所有権 |
| 備考 | 駐車場1台 |
| 問い合わせ先 | 株式会社しあわせな家 |